Uthyres kontor, utställning, övrig lokaltyp - Östermalm
Sibyllegatan 81, 114 43 Östermalm Objektnummer 10761037
Attraktivt beläget vindskontor på Östermalm med närhet till allt vad Östermalm har att erbjuda vad gäller kommunikativa färdmedel, restaurangutbud samt all kommersiell service som tänkas kan. Här erbjuds ett representativt kontor att trivas i!
Adress
Sibyllegatan 81
, 114 43
Östermalm
Lokaltyp
Kontorslokaler
140 m2
Utställningslokaler
140 m2
Övriga lokaler
140 m2
Totalyta
140 m2
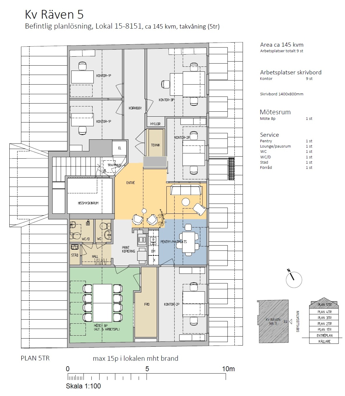
Planlösning
Månadshyra:
Kontakta lokalförmedlaren för mer info.
Objektbeskrivning
Fastigheten
Huset uppfördes 1894 och renoverades 2006 då bl.a. stambyten gjordes, fasaden renoverades och ventilationen sågs över.
Läge
Lokalen har en rumsindelat planlösning som fördelas på totalt 6 rum samt pentry i öppen planlösning. De två största rummen ligger på vänster sida när man stiger in i lokalen. Det ena nyttjas med fördel som konferensrum. Lokalens pentry ligger i lokalens hjärta i anslutning till entrén. På lokalens högra sida finns ytterligare 4 arbetsrum.
Lokalen har två fräscha helkaklade wc varav en med dusch och takfönster, ett städförråd samt ett större förråd.
Lokalen lämpar sig för kontorsverksamhet, showroom eller en kombination av båda.
Lokalen har två fräscha helkaklade wc varav en med dusch och takfönster, ett städförråd samt ett större förråd.
Lokalen lämpar sig för kontorsverksamhet, showroom eller en kombination av båda.
Parkering
Ett mindre parkeringsgarage finns i huset, för närvarande är det kö för plats. Parkeringsmöjligheter även på kringliggande gator enligt stadens tariff och externa parkeringsgarage. Det är relativt lätt att hitta lediga platser utomhus längs Valhallavägens Allé. Stockholms Parkering har ett parkeringshus på Östermalmsgatan 48.
Service
All tänkbar service inom gångavstånd. I närområdet finns en mängd trevliga restauranger och med alla tänkbara smakriktningar. Det finns massor av trevliga lunchställen och barer längs efter Grev Turegatan, Strandvägen och kring Karlaplan och Östermalmstorg. På Nybrogatan finns ett gediget utbud av trevliga små butiker och systembolag. Du har också gångavstånd till Dramatens kulturutbud.
Kommunikation
Mycket bra kommunikativt läge med gångavstånd till inte mindre än tre t-banestationer (Östermalmstorg, Stadion och Karlaplan). Flertalet busslinjer passerar nära; 1:an (Stora Essingen-Frihamnen), 4:an (Radiohuset-Gullmarsplan) och 72an (Karolinska Sjukhuset-Östhammarsgatan).
Övrigt
Fastighetsägaren har fri prövningsrätt vad gäller val av hyresgäst och verksamhet. Vänligen respektera hyresvärdens önskemål om att all kontakt respektive visningar skall ske via mäklaren.
Tilläggsuppgifter
Tillträde
Enligt överenskommelse.
Byggår
1894
Renoveringsår
2006
Hiss
i
Begär mer info
m
Kontaktuppgifter