Uthyres kontor, butik, utställning, övrig lokaltyp - Frescati
Ekhagsvägen 6, 114 18 Frescati Objektnummer 10761108
Lokal med flera användningsområden beläget i markplan med egen ingång.
Adress
Ekhagsvägen 6
, 114 18
Frescati
Lokaltyp
Kontorslokaler
74 m2
Butikslokaler
74 m2
Utställningslokaler
74 m2
Övriga lokaler
74 m2
Totalyta
74 m2
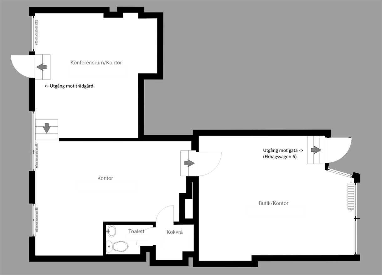
Planlösning
Årshyra:
1 900 kr/m²/år
Objektbeskrivning
Läge
Lättillgänlig lokal i bra läget närhet till såväl Östermalm, Rosalgstull som till norrort. Lokalen ligger innaför tullarna.
Planlösning: Perfekt lokal för det lilla kontoret nära stan men förbi alla köer in och lätt med parkering.
Uppfixad med nymålade väggar, ny bra belysning och elutag överallt.
Perfekt läge för dig som vill ha bra parkeringsmöjligheter utan att trängas mitt inne i stan.
Lokalen ligger innanför tullarna.
Lokalen ligger i markplan med egen ingång direkt från gatan vilket gör att den lämpar sig bra som kontor/showroom, webshop/kontor eller självklart enbart som kontor.
Direkt i entrén möts du av en stor öppen yta med en generös takhöjd.
Lokalen fortsätter inåt till ännu en stor öppen yta med plats för 3-4 kontorsplatser i anslutning till den ytan finns ett litet pentry/kovrå samt en wc.
Ytterligare två trappsteg ner finns ett stort rum lämpligt som större mötesrum med ett större modernt pentry.
Lokalen har genomgående fönster för ett bra ljusinsläpp även i den inre ytan.
I anslutning till fastigheten på baksidan finns trevliga grönområden för lunch och fika i solen.
Fiber/bredband från Ownit finns anslutet till fastigheten 1000/1000.
Du har nära till fina matställen som Skafferiet Ekoparken i lilla skuggan, Naturhistoriska museets fina restaurang eller Stora skuggans värdshus, sen finns också sevärdheten Professorn bland studenter i Lappis.
Bekvämligheter: Kök/pentry, Mötesrum
Planlösning: Perfekt lokal för det lilla kontoret nära stan men förbi alla köer in och lätt med parkering.
Uppfixad med nymålade väggar, ny bra belysning och elutag överallt.
Perfekt läge för dig som vill ha bra parkeringsmöjligheter utan att trängas mitt inne i stan.
Lokalen ligger innanför tullarna.
Lokalen ligger i markplan med egen ingång direkt från gatan vilket gör att den lämpar sig bra som kontor/showroom, webshop/kontor eller självklart enbart som kontor.
Direkt i entrén möts du av en stor öppen yta med en generös takhöjd.
Lokalen fortsätter inåt till ännu en stor öppen yta med plats för 3-4 kontorsplatser i anslutning till den ytan finns ett litet pentry/kovrå samt en wc.
Ytterligare två trappsteg ner finns ett stort rum lämpligt som större mötesrum med ett större modernt pentry.
Lokalen har genomgående fönster för ett bra ljusinsläpp även i den inre ytan.
I anslutning till fastigheten på baksidan finns trevliga grönområden för lunch och fika i solen.
Fiber/bredband från Ownit finns anslutet till fastigheten 1000/1000.
Du har nära till fina matställen som Skafferiet Ekoparken i lilla skuggan, Naturhistoriska museets fina restaurang eller Stora skuggans värdshus, sen finns också sevärdheten Professorn bland studenter i Lappis.
Bekvämligheter: Kök/pentry, Mötesrum
Omgivning
I Ekhagen har du nära till både natur och vatten. Ekhagen är beläget på Norra Djurgården med gångavstånd till Bergianska trädgården, Naturhistoriska riksmuseet där du har en restaurang som serverar dagens lunch. I närheten ligger Stora Skuggan där du finner både café Skafferiet i Ekoparken samt Stora Skuggans värdshus som serverar luncher.
Parkering
Man parkerar enkelt längs med gatorna i området.
Kommunikation
Buss 50 från Odenplan, via Universitetets T-bana
T-bana Universitet 800 meter promenad eller Buss 50.
Bil via E18 Norr ut och söder ut, mot alla bilköer eller via Naturhistoriska Museet innanför tullarna.
T-bana Universitet 800 meter promenad eller Buss 50.
Bil via E18 Norr ut och söder ut, mot alla bilköer eller via Naturhistoriska Museet innanför tullarna.
Tilläggsuppgifter
Tillträde
Efter överenskommelse
Renoveringsår
2025
Våning
Markplan
i
Begär mer info
m
Kontaktuppgifter