Uthyres kontor - City
Tegnérgatan 35, 111 61 City Objektnummer 10761079
På anrik fastighet anno 1898 intill Tegnérlunden och den mysiga delen av Drottninggatan finns detta representativa kontor tillgängligt!
Adress
Tegnérgatan 35
, 111 61
City
Lokaltyp
Kontorslokaler
170 - 510 m2
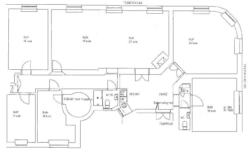
Planlösning
Månadshyra:
Kontakta lokalförmedlaren för mer info.
Objektbeskrivning
Fastigheten
Huset färdigställdes år 1898 med tidstypisk arkitektur. Det finns en trevlig innergård att nyttja.
Läge
En fantastisk arbetsplats med bevarad karaktär från det förra sekelskiftet där tidlös charm möter de krav som en modern kontorsmiljö ställer!
Det geografiska läget, lokalens bevarade vackra originaldetaljer sammantaget med den utmärkta planlösningen gör detta till den optimala arbetsplatsen!
Varmt välkommen på visning!
I huset finns tre lokaler om 170 kvm vardera tillgängliga för uthyrning. Det går alltså att hyra en av lokalerna om ca 170 kvm, två av lokalerna om totalt ca 340 kvm eller alla tre lokalerna om totalt ca 510 kvm. Idag hyrs samtliga våningsplan av en och samma hyresgäst.
Om lokalen
Lokalens planlösning är rumsindelad och fördelas på fem rum i varierande storlek varav ett med en vacker öppen spis. Hörnrummet är mycket representativt och det nyttjas idag som konferensrum. Det största rummet är två rum som har slagits ihop. Övrig lokalarea fördelas på ett pentry i anslutning till entrén samt två fräscha helkaklade wc. Om ett rymligare pentry önskas eller en större besöksyta vid entrén så har lokalen på 2 trappor som även finns tillgänglig den planlösningen.
Det finns även två andra lokaler tillgängliga i huset på 1 och 3 trappor som har pentryt placerat i anslutning till entrén ifall ytterligare två arbetsrum önskas.
Lokalen erbjuder en härlig atmosfär med bevarade snickerier från byggnadsåren så som stuckaturer, takrosetter, spegeldörrar samt vackra högresta fönster.
Den generösa takhöjden och den genomgående planlösningen inger en härlig känsla av ljus och rymd – här kommer personalen definitivt att trivas! Lokalen erbjuder medarbetarna arbetsro samtidigt som de kan inspireras av pulsen som finns alldeles utanför dörren.
Ventilation: Mekanisk frånluft
Säkerhet: Lokalen har gallergrind.
Bredband: Tele2 (före detta ComHem) finns anslutet till fastigheten och även Stokab vilket gör det möjligt att använda fiberoptiskt nätverk samt välja bredbandsleverantör.
Det geografiska läget, lokalens bevarade vackra originaldetaljer sammantaget med den utmärkta planlösningen gör detta till den optimala arbetsplatsen!
Varmt välkommen på visning!
I huset finns tre lokaler om 170 kvm vardera tillgängliga för uthyrning. Det går alltså att hyra en av lokalerna om ca 170 kvm, två av lokalerna om totalt ca 340 kvm eller alla tre lokalerna om totalt ca 510 kvm. Idag hyrs samtliga våningsplan av en och samma hyresgäst.
Om lokalen
Lokalens planlösning är rumsindelad och fördelas på fem rum i varierande storlek varav ett med en vacker öppen spis. Hörnrummet är mycket representativt och det nyttjas idag som konferensrum. Det största rummet är två rum som har slagits ihop. Övrig lokalarea fördelas på ett pentry i anslutning till entrén samt två fräscha helkaklade wc. Om ett rymligare pentry önskas eller en större besöksyta vid entrén så har lokalen på 2 trappor som även finns tillgänglig den planlösningen.
Det finns även två andra lokaler tillgängliga i huset på 1 och 3 trappor som har pentryt placerat i anslutning till entrén ifall ytterligare två arbetsrum önskas.
Lokalen erbjuder en härlig atmosfär med bevarade snickerier från byggnadsåren så som stuckaturer, takrosetter, spegeldörrar samt vackra högresta fönster.
Den generösa takhöjden och den genomgående planlösningen inger en härlig känsla av ljus och rymd – här kommer personalen definitivt att trivas! Lokalen erbjuder medarbetarna arbetsro samtidigt som de kan inspireras av pulsen som finns alldeles utanför dörren.
Ventilation: Mekanisk frånluft
Säkerhet: Lokalen har gallergrind.
Bredband: Tele2 (före detta ComHem) finns anslutet till fastigheten och även Stokab vilket gör det möjligt att använda fiberoptiskt nätverk samt välja bredbandsleverantör.
Omgivning
Förutom Drottninggatans myllrande folkliv runt hörnet finns stillheten i parkerna Tegnérlunden och Observatorielunden alldeles inpå knuten. Närområdet berikas även av ett brett kulturutbud. En etablering på Tegnergatan 35 innebär inte bara en attraktiv arbetsplats utan också en adress som signalerar kvalitet och tillgänglighet i Stockholms innerstad.
Parkering
På intilliggande gator enligt stadens tariff och i de kringliggande allmänna parkeringshusen. Stockholms parkering har flera parkeringsgarage inom gångavstånd.
Service
Gångavstånd till hela citys serviceutbud såsom exempelvis Drottninggatan som erbjuder alla tänkbara shoppingmöjligheter. I lokalens närhet finns ett rikligt utbud av restauranger, caféer etc. vilket ger utmärkta möjligheter för affärsluncher och After Works.
Kommunikation
Det kommunikativa läget är mycket bra med endast ca 300 m till Rådmansgatans t-banestation. Det är kort gångavstånd till Odenplan där pendeltåg och ett stort antal busslinjer passerar. Det tar ca 10 minuter att gå till Stockholms Centralstation som är Stockholms största och viktigaste kommunikativa knutpunkt med t-bana, pendeltåg, tåg, fjärrbussar, flygbussar och Arlanda Express. Ett flertal busslinjer passerar också nära fastigheten. Läget är även lättillgängligt för bilburna med närheten till Sveavägen som snabbt tar Dig ut till de stora lederna åt norr, väst och söder.
Övrigt
Hyresvärden har fri prövningsrätt vad gäller val av hyresgäst och verksamhet. Vänligen respektera hyresvärdens önskemål om att all kontakt och visningar skall ske via lokalförmedlaren.
Kontakta lokalförmedlaren Hanna Friman för mer info; maila gärna till hanna@lokaldirekt.se eller messa/ring på mob: 0733-24 35 23.
Kontakta lokalförmedlaren Hanna Friman för mer info; maila gärna till hanna@lokaldirekt.se eller messa/ring på mob: 0733-24 35 23.
Tilläggsuppgifter
Tillträde
Enligt överenskommelse.
Byggår
1898
Våning
1 trappa
Hiss
i
Begär mer info
m
Kontaktuppgifter