Uthyres lager/logistik, övrig lokaltyp - Gärdet
Erik Dahlbergsgatan 36, 115 32 Gärdet Objektnummer 10761103
Lagerlokal i bästa läge på nedre Gärdet finns nu tillgänglig! Bra lastaccess för mindre lastbilar. Lokalen kan passa utmärkt för olika hantverkare eller som lagerlokal för förvaring.
Adress
Erik Dahlbergsgatan 36
, 115 32
Gärdet
Lokaltyp
Lagerlokaler
70 - 74 m2
Övriga lokaler
70 - 74 m2
Totalyta
70 - 74 m2
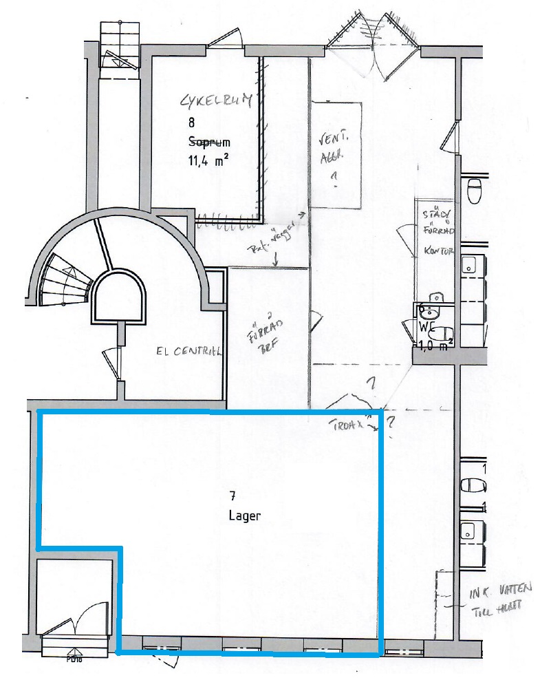
Planlösning
Månadshyra:
Kontakta lokalförmedlaren för mer info.
Objektbeskrivning
Fastigheten
Huset färdigställdes år 1935.
Läge
Om lokalen
Lokalen utgörs av en helt öppen lageryta med ljusinsläpp från tre stycken högt sittande fönster. Wc finns alldeles utanför lokalen vilken kommer att fräscha upp innan tillträde. Lokalen saknar idag pentry.
På utsidan sitter en dubbelport om ca 2,60 M bred och ca 2.32 M hög. Innanför denna kommer ett nytt ventilationsaggregat att installeras vilket förser lokalen med luft. Innanför ventilationsaggregatet kommer föreningen att bygga ett mindre förråd för eget bruk. Innanför föreningens förråd kommer en lokalavskiljande vägg med port att byggas vilken avgränsar lokalen. Se ritningen i annonsen för tydliggörande.
Storleken på lokalen kan därför variera mellan 70-74 m2 beroende på hur den lokalavskiljande väggen byggs.
Lastaccessen till lokalen är bra då det går att parkera en mindre lastbil framför porten. Det går dock inte att köra runt utan man måste backa ut igen.
Takhöjd: ca 2,62 M upp till betong och ca 2,29 M upp till takstege.
Bredband: Fiber finns indraget via Telia och Stokab finns anslutet till fastigheten.
Lokalen utgörs av en helt öppen lageryta med ljusinsläpp från tre stycken högt sittande fönster. Wc finns alldeles utanför lokalen vilken kommer att fräscha upp innan tillträde. Lokalen saknar idag pentry.
På utsidan sitter en dubbelport om ca 2,60 M bred och ca 2.32 M hög. Innanför denna kommer ett nytt ventilationsaggregat att installeras vilket förser lokalen med luft. Innanför ventilationsaggregatet kommer föreningen att bygga ett mindre förråd för eget bruk. Innanför föreningens förråd kommer en lokalavskiljande vägg med port att byggas vilken avgränsar lokalen. Se ritningen i annonsen för tydliggörande.
Storleken på lokalen kan därför variera mellan 70-74 m2 beroende på hur den lokalavskiljande väggen byggs.
Lastaccessen till lokalen är bra då det går att parkera en mindre lastbil framför porten. Det går dock inte att köra runt utan man måste backa ut igen.
Takhöjd: ca 2,62 M upp till betong och ca 2,29 M upp till takstege.
Bredband: Fiber finns indraget via Telia och Stokab finns anslutet till fastigheten.
Omgivning
Lugnt och trivsamt område med fin natur så som närhet t till Ladugårdsgärdets fridfulla strövområden. Förflyttar du dig ytterligare en bit bort så har Du Kungliga Djurgården framför Dina fötter med fina promenadstråk.
Parkering
På intilliggande gator och parkeringshus, exempelvis Q-park vid Fältöversten och Stockholms Parkering har ett parkeringshus på Östermalmsgatan 48 med endast är några månaders kötid. Det är relativt lätt att hitta lediga platser utomhus längs Valhallavägens Allé med avgift enligt stadens tariff.
Service
Det geografiska läget erbjuder ett utmärkt serviceutbud för företaget som värdesätter effektivitet och bekvämlighet. Här finns allt inom räckhåll – från banker, postombud, kontorsservice till restauranger, caféer och butiker som underlättar vardagen. Inom några minuters promenad ligger Fältöverstens galleria samt Östermalmstorg och Karlaplan med ett stort utbud av butiker, restauranger, caféer, Systembolaget etc. Adressen är ett bra val för företaget som vill kombinera ett strategiskt läge med tillgång till all nödvändig service.
Kommunikation
Mycket bra kommunikationer med gångavstånd till tunnelbanestationerna Stadion, Karlaplan och Gärdet. Flera busslinjer trafikerar området. För bilister finns nära anslutning till E4:an.
Övrigt
Föreningen har fri prövningsrätt vad gäller val av hyresgäst och verksamhet. Vänligen respektera föreningens önskemål om att all kontakt och visningar skall ske via mäklaren.
Tilläggsuppgifter
Tillträde
Tillträde kan ske enligt överenskommelse.
Byggår
1935
i
Begär mer info
m
Kontaktuppgifter