Uthyres kontor - Kungsholmen
Alströmergatan 14, 11234 Kungsholmen Objektnummer 10761130
Söker ni ett kontor som kombinerar lugn arbetsro med stadens puls? Välkommen till Alströmergatan 14 – en modern pärla på Kungsholmen med förstklassig service och anrik historia.
Adress
Alströmergatan 14
, 11234
Kungsholmen
Lokaltyp
Kontorslokaler
240 m2
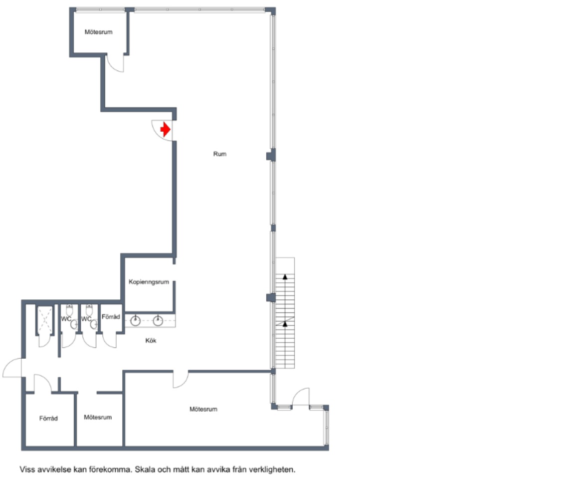
Planlösning
Månadshyra:
Kontakta lokalförmedlaren för mer info
Objektbeskrivning
Fastigheten
Fullservice som förenklar vardagen
Glöm vardagspusslet. Som hyresgäst i denna Ture Wennerholm-ritade funkisfastighet har ni tillgång till service utöver det vanliga:
• Bemannad reception: Ett proffsigt välkomnande för era kunder.
• Konferens & Event: Allt från små mötesrum till en hörsal för 115 personer.
• Hälsa i fokus: Fullutrustat gym, träningssal med SATS-ledda pass och omklädningsrum i huset.
• Sociala ytor: En gemensam matsal för nätverkande luncher och en möblerad innergård för kaffepausen i solen.
Glöm vardagspusslet. Som hyresgäst i denna Ture Wennerholm-ritade funkisfastighet har ni tillgång till service utöver det vanliga:
• Bemannad reception: Ett proffsigt välkomnande för era kunder.
• Konferens & Event: Allt från små mötesrum till en hörsal för 115 personer.
• Hälsa i fokus: Fullutrustat gym, träningssal med SATS-ledda pass och omklädningsrum i huset.
• Sociala ytor: En gemensam matsal för nätverkande luncher och en möblerad innergård för kaffepausen i solen.
Läge
Lokalen: Effektiv, modernt och genomtänkt
Nu finns möjligheten att hyra effektivt välplanerad lokal om ca 240 kvm. Här möts ni av en öppen planlösning som bjuder in till samarbete, kompletterat med:
• Fokus & Möten: Ett rymligt konferensrum och två mindre mötesrum för de snabba avstämningarna.
• Smart flöde: Det strategiskt placerade pentryt gör det enkelt att bjuda in besökare utan att störa arbetsron på kontoret.
• Harmoni: Stora fönster mot den lugna innergården ger ett behagligt ljusinsläpp och en miljö där personalen verkligen trivs.
• Teknik: Fiber via Telia (Stokab anslutet), modern ventilation med kyla.
Vill ni ta nästa steg?
Välkommen att kontakta oss för en personlig visning och mer information om hur detta kontor kan bli basen för er framtida tillväxt.
Nu finns möjligheten att hyra effektivt välplanerad lokal om ca 240 kvm. Här möts ni av en öppen planlösning som bjuder in till samarbete, kompletterat med:
• Fokus & Möten: Ett rymligt konferensrum och två mindre mötesrum för de snabba avstämningarna.
• Smart flöde: Det strategiskt placerade pentryt gör det enkelt att bjuda in besökare utan att störa arbetsron på kontoret.
• Harmoni: Stora fönster mot den lugna innergården ger ett behagligt ljusinsläpp och en miljö där personalen verkligen trivs.
• Teknik: Fiber via Telia (Stokab anslutet), modern ventilation med kyla.
Vill ni ta nästa steg?
Välkommen att kontakta oss för en personlig visning och mer information om hur detta kontor kan bli basen för er framtida tillväxt.
Omgivning
En knutpunkt för affärer och livskvalitet
Fridhemsplan är en av Stockholms mest dynamiska platser. Här arbetar ni med ena foten i City och den andra i Kungsholmens härliga atmosfär:
Ta lunchpromenaden eller löprundan längs Karlbergskanalens vackra strandpromenad.
Fridhemsplan är en av Stockholms mest dynamiska platser. Här arbetar ni med ena foten i City och den andra i Kungsholmens härliga atmosfär:
Ta lunchpromenaden eller löprundan längs Karlbergskanalens vackra strandpromenad.
Service
Västermalmsgallerian och ett enormt utbud av restauranger, caféer och butiker ligger bara ett stenkast bort.
Kommunikation
Blå och grön tunnelbanelinje samt flera stombussar (1, 3, 4) precis runt hörnet. Smidig access till Essingeleden för bilburna.
Övrigt
Vänligen respektera hyresvärdens önskemål om att all kontakt och visning sker via lokalförmedlaren.
Tilläggsuppgifter
Tillträde
Enligt överenskommelse.
Byggår
1956
Våning
Entréplan
Hiss
i
Begär mer info
m
Kontaktuppgifter